Вхід на сайт

Ел. пошта:
Пароль:

Реєстрація на сайті

Призвіще: Область:
Ім'я: Населений пункт:
    По батькові: Номер телефону:
    Ел. пошта: Компанія:
      Пароль: Посада:
      Повторіть пароль: Рік початку роботи:
      Фото:
      З правилами розміщення об'єктів погоджуюсь

      Забули пароль?

      Вкажіть ел. пошту — ми надішлемо Вам новий пароль для входу
      Ел. пошта:

      Проблема на сайті

      Закрити
      Ваш e-mail:
      (необов'язково)
      Розкажіть нам, що сталось

      без комісії ул. Гоголя, 19 — Продається торгівельний майданчик

      (г. Белая Церковь)

      190000 $

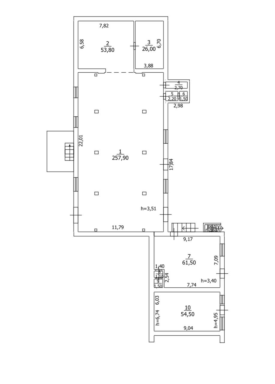
      Загальна площа: 500 кв.м

      Поверх: 1

      К-ть поверхів: 2

      Пропонуємо до продажу комерційне приміщення в самому центрі міста, біля Торгового Центру, приміщення виходить на дві сторони доріг: вул.Ярмаркову, вул. Івана Кожедуба.
      Основа приміщення: монолітно-каркасна, заведені всі комунікації: водопостачання, водовідведення, скважина, електроенергія 25 кВт, висота приміщення 3,4метра.
      Із основних переваг приміщення є заїзд для розгрузки вантажних автомобілів, парковка для Ваших авто і авто Ваших клієнтів, земельна ділянка 12 соток (в пропорції).
      Використання приміщення: під торгівлю ( секонд хенд, продовольчі товари, автомобільні товари), склад, виробничі приміщення (швейний цех), інше.

      Рубан Руслан

      Рубан Руслан В'ячеславович

      Генеральний директор (Агенція Нерухомості "Ексклюзив")

      +380 (97) 884-31... Показати номер телефона +380 (97) 884-31-45, +380 (93) 850-64-69, +380 (67) 834-87-74, +380 (45) 630-90-13, +380 (98) 849-72-52

      Поскаржитися на об'єкт

      Надіслати скаргу

      Закрити
      Поскаржитися на об'єкт «ул. Гоголя, 19 (г. Белая Церковь)»
      Ваш коментар:(Необов'язково)
      Ваша скарга буде надіслана ріелтору, що розмістив об'єкт, а також адміністрації сайту АФНУ.
      Ваше ім'я:
      (Обов'язково)
      Ваш e-mail для відповіді:
      (Обов'язково)

      Коментарі