пр. Університетський — Здається торгівельний майданчик
(г. Кривой Рог, Саксаганский район)
350 грн. за кв.м.
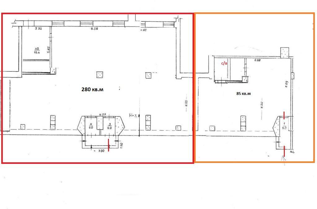
Загальна площа: 260 кв.м
Поверх: 1
К-ть поверхів: 9
Оренда торгового приміщення пр. Університетський - Довгинцівський район Технічні характеристики: - перший поверх 9-ти поверхового житлового будинку - "червона лінія" - в приміщенні ведуться ремонтні роботи Планування об’єкту: - загальна площа - 260 кв.м. - окремий центральний вхід та завантажувальний - вільне планування - вітражний фасад Комунікації: - опалення відключено (транзит) - центральне електропостачання 25 кВт; 380 Вт - центральне водопосточання, каналізація - пожежна, охорона сигналізації Логістична розв’язка: - магазин розташований в густонаселеному районі - поруч зупинки громадського транспорту - автовокзал - супермаркет "АТБ", магазини "Єва", "Файно", аптеки "Подоржник", "АНЦ" та безліч інших магазинів - великий автомобільний та пішохідний трафік Оренда - 350грн/кв.м. За будь-якими питаннями за цією або схожими пропозиціями звертайтесь за номером телефону, де вам відповість наш ріелтор Наталія – 067 696 16 51 Підписуйтесь на наш Instagram та слідкуйте за оновленнями - @ancredokr З повагою, команда Credo!
Оновлено: 9 жовтня 2025
Розміщено: 29 березня 2024
Вам также могут подойти
Оновлено: 24 грудня 2025
Розміщено: 14 травня 2025
площа 103, поверх 1/4
г. Кривой Рог, пр. Гагаріна
400 грн. за кв.м.
Літвинова Ірина Вікторівна
Пр. Університетський, 3 (Гагаріна) Саксаганський район - загальна площа-103 кв.м - торгівельний зал-73,4 кв.м - висота стелі - Н= 3,20 м Комунікації: - центральне електропостачання 12 кВт; 380 Вт -…
Детальніше
Оновлено: 5 грудня 2025
Розміщено: 16 травня 2025
площа 308, поверх 1/4
г. Кривой Рог, пр. Університетський
350 грн. за кв.м.
Літвинова Ірина Вікторівна
Оренда магазину Саксаганський район пр. Університетський (пр. Гагаріна), 96 квартал "червона лінія" Технічні характеристики: - перший поверх 4-х поверхового житлового будинку - гарний фасад - великі вітражні вікна - ролети…
Детальніше
Оновлено: 11 грудня 2025
Розміщено: 16 травня 2025
площа 562, поверх 1/9
г. Кривой Рог, Володимира Великого
250 грн. за кв.м.
Літвинова Ірина Вікторівна
Оренда торгового приміщення вул.Володимира Великого Саксаганський район Технічні характеристики: - перший поверх 9-ти поверхового житлового будинку - "червона лінія" - в приміщенні зроблено капітальний ремонт Планування об’єкту: - загальна площа…
Детальніше
Коментарі