Вхід на сайт

Ел. пошта:
Пароль:

Реєстрація на сайті

Призвіще: Область:
Ім'я: Населений пункт:
    По батькові: Номер телефону:
    Ел. пошта: Компанія:
      Пароль: Посада:
      Повторіть пароль: Рік початку роботи:
      Фото:
      З правилами розміщення об'єктів погоджуюсь

      Забули пароль?

      Вкажіть ел. пошту — ми надішлемо Вам новий пароль для входу
      Ел. пошта:

      Проблема на сайті

      Закрити
      Ваш e-mail:
      (необов'язково)
      Розкажіть нам, що сталось

      без комісії ул. Кринична — Продається будинок

      (с. Белогородка, Киево-Святошинский район)

      82000 $

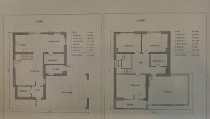
      Загальна площа: 173 кв.м

      Площа ділянки: 4 сот

      Кімнат: 4

      К-ть поверхів: 2

      Супер! Продается 2-х этажный добротный ДОМ в тихом, красивом, зелёном месте
      Киево-Святошинского района.
      Граница с.Белогородка-Святопетровское. ул.Кринична.
      Дом 173м2, участок 4 сотки.
      Дом строился в 2023г. Строился по европейскому проекту,
      профессиональными строителями ( имеются фото всех этапов строительства).
      1 этаж: просторная гостиная, кухня- столовая, санузел , кладовая и навес на 2 авто. высота 3 м.
      2жтаж: 3 спальни, в одной спальни выход на лоджию, саузел и терраса.высота 2.9м.
      Дом построен в этом году, имеюися стены, лесничный марш и крыша.
      Заложены все необходимые коммуникации на этапе строительства.
      На участке имеется скважина.
      Электроэнергия 10 киловат с возможностью увеличения.
      Соседи уже проживают.
      Развитая инфраструктура.
      Супер цена 82000 у.е.
      Дмитрий.

      Исоков Дмитрий

      Исоков Дмитрий

      +380 (96) 227-04... Показати номер телефона +380 (96) 227-04-22, +380 (50) 013-90-70, +380 (63) 157-59-92

      Поскаржитися на об'єкт

      Надіслати скаргу

      Закрити
      Поскаржитися на об'єкт «ул. Кринична (с. Белогородка, Киево-Святошинский район)»
      Ваш коментар:(Необов'язково)
      Ваша скарга буде надіслана ріелтору, що розмістив об'єкт, а також адміністрації сайту АФНУ.
      Ваше ім'я:
      (Обов'язково)
      Ваш e-mail для відповіді:
      (Обов'язково)

      Коментарі