Вхід на сайт

Ел. пошта:
Пароль:

Реєстрація на сайті

Призвіще: Область:
Ім'я: Населений пункт:
    По батькові: Номер телефону:
    Ел. пошта: Компанія:
      Пароль: Посада:
      Повторіть пароль: Рік початку роботи:
      Фото:
      З правилами розміщення об'єктів погоджуюсь

      Забули пароль?

      Вкажіть ел. пошту — ми надішлемо Вам новий пароль для входу
      Ел. пошта:

      Проблема на сайті

      Закрити
      Ваш e-mail:
      (необов'язково)
      Розкажіть нам, що сталось

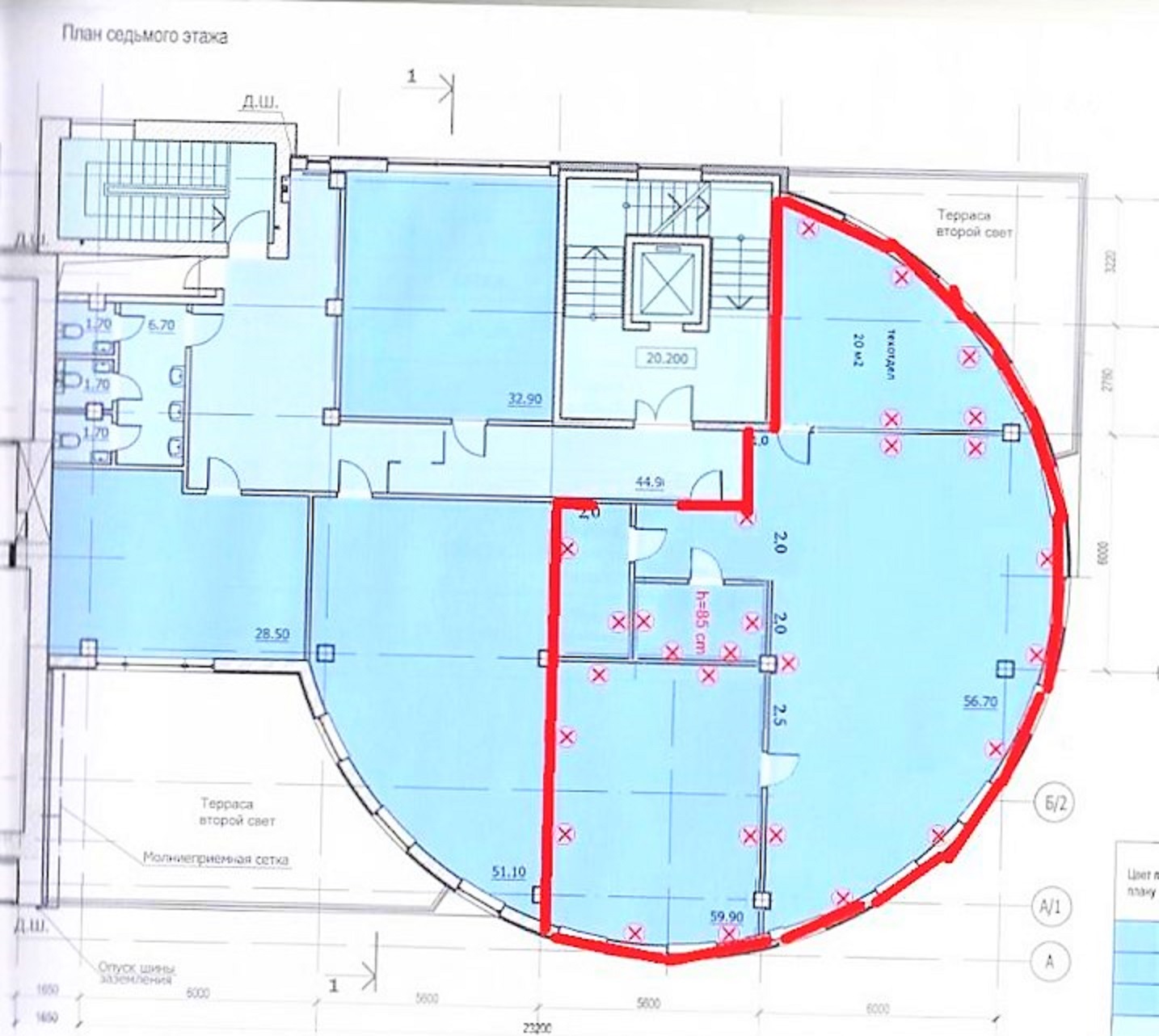
      Полтавський Шлях вулиця, 144 — Здається офіс

      (г. Харьков, Ленинский район)

      30660 грн.

      Загальна площа: 153 кв.м

      Кімнат: 5

      Поверх: 7

      К-ть поверхів: 7

      Без комісії!
      Здам в оренду офісне приміщення в ТЦ Обруч, М Холодна Гора

      Код об'єкта RC-171-619

      Зручне розташування, просто біля порогу станції метро, поряд супермаркет Рост, ринок, зупинки наземного транспорту.

      7-й поверх 7-поверхової будівлі. Висота стелі - 3 м.
      Ліфт.

      Загальна площа 153, 3 кв.м.
      На поверсі зі своїми санвузлами ще два орендаря.
      Свіжий капітальний ремонт. Без меблів.

      Орендна плата 200 грн./кв.м/міс. + комунальні послуги

      Надіслати скаргу

      Закрити
      Поскаржитися на об'єкт «Полтавський Шлях вулиця, 144 (г. Харьков, Ленинский район)»
      Ваш коментар:(Необов'язково)
      Ваша скарга буде надіслана ріелтору, що розмістив об'єкт, а також адміністрації сайту АФНУ.
      Ваше ім'я:
      (Обов'язково)
      Ваш e-mail для відповіді:
      (Обов'язково)

      Вам также могут подойти

      Різдвяна, 29б (г. Харьков, Ленинский район) - Здається офіс, 31500 грн. - АФНУ

      Оновлено: 11 липня

      Розміщено: 27 серпня 2023

      Здається офіс

      4 кімн., площа 315, поверх 10/10

      г. Харьков, Різдвяна, 29б

      31500 грн.

      Авраменко Елена Александровна

      (Агенція нерухомості AvramenKo) , (Агенція нерухомості AvramenKo)

      Здам офісне приміщення біля Центрального ринку, вул. Різдвяна, буд.29б, М Центральний Ринок

      Код обєкта - RC-180-382

      Зручне розташування, поряд станція метро Центральний ринок, зупинки наземного транспорту, автостанція, торгівельний майданчик, заклади…

      Детальніше

      пров. Таганський 3-й, 2А (г. Харьков, Ленинский район) - Продається офіс, 38900 $ - АФНУ

      Оновлено: 11 липня

      Розміщено: 9 грудня 2023

      Продається офіс

      8 кімн., площа 172, поверх 1/6

      г. Харьков, пров. Таганський 3-й, 2А

      38900 $

      Авраменко Елена Александровна

      (Агенція нерухомості AvramenKo) , (Агенція нерухомості AvramenKo)

      Продам комерційне приміщення (нежитловий фонд) вільного призначення на першому поверсі житлового будинку в районі Лисої Гори, пров. Таганський 3-й, буд. 2-А.

      Код обєкта - SC-185-277

      Спальний район, 7 хвилин на…

      Детальніше

      Різдвяна, 29б (г. Харьков, Ленинский район) - Здається офіс, 31500 грн. - АФНУ

      Оновлено: 11 липня

      Розміщено: 27 серпня 2023

      Здається офіс

      4 кімн., площа 315, поверх 10/10

      г. Харьков, Різдвяна, 29б

      31500 грн.

      Авраменко Елена Александровна

      (Агенція нерухомості AvramenKo) , (Агенція нерухомості AvramenKo)

      Здам офісне приміщення біля Центрального ринку, вул. Різдвяна, буд.29б, М Центральний Ринок

      Код обєкта - RC-180-382

      Зручне розташування, поряд станція метро Центральний ринок, зупинки наземного транспорту, автостанція, торгівельний майданчик, заклади…

      Детальніше

      Коментарі