Вхід на сайт

Ел. пошта:
Пароль:

Реєстрація на сайті

Призвіще: Область:
Ім'я: Населений пункт:
    По батькові: Номер телефону:
    Ел. пошта: Компанія:
      Пароль: Посада:
      Повторіть пароль: Рік початку роботи:
      Фото:
      З правилами розміщення об'єктів погоджуюсь

      Забули пароль?

      Вкажіть ел. пошту — ми надішлемо Вам новий пароль для входу
      Ел. пошта:

      Проблема на сайті

      Закрити
      Ваш e-mail:
      (необов'язково)
      Розкажіть нам, що сталось

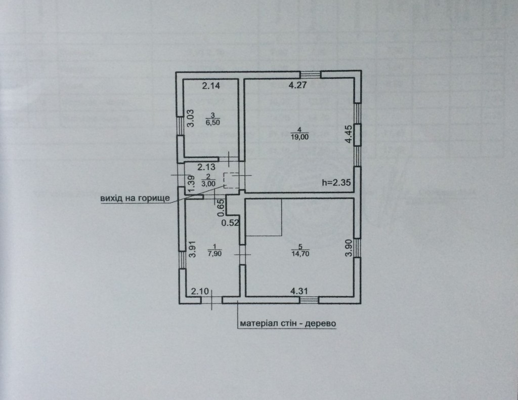
      Січових Стрільців — Продається будинок

      (с. Старые Богородчаны, Богородчанский район)

      9500 $

      Загальна площа: 50 кв.м

      Площа ділянки: 8 сот

      Кімнат: 3

      К-ть поверхів: 1

      Приватний будинок в центрі села Старі Богородчани.

      В будинку встановлено металопластикові вікна та нові вхідні двері.
      Ззовні оббитий сайдингом. Потребує ремонту.
      Підведено всі комунікації: газ, вода, світло, є лічильники та піч.
      Є можливість встановити душову кабіну.

      Поруч з Будинком знаходиться велика присадибна ділянка - 8 сотих, власна криниця та сад.
      До центру Івано-Франківська 15 км.

      Надіслати скаргу

      Закрити
      Поскаржитися на об'єкт «Січових Стрільців (с. Старые Богородчаны, Богородчанский район)»
      Ваш коментар:(Необов'язково)
      Ваша скарга буде надіслана ріелтору, що розмістив об'єкт, а також адміністрації сайту АФНУ.
      Ваше ім'я:
      (Обов'язково)
      Ваш e-mail для відповіді:
      (Обов'язково)

      Коментарі