Небесной Сотни, 15 — Продається офіс
(г. Полтава, Октябрьский район)
120000 $
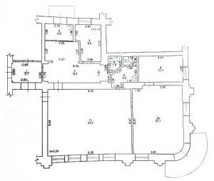
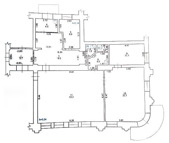
Загальна площа: 149.2 кв.м
Кімнат: 6
Поверх: 2
К-ть поверхів: 3
Продажа торгово-офисного помещения общей площадью 149,2 м2 в Центре Полтавы на ул. Н. Сотни, 15 (в районе Областной библиотеки, ост. Краеведческий музей) , на 2 этаже по улице Небесной Сотни, вход с фасадной части дома Описание и характеристика помещений и зданий: - торгово- офисное помещение- 53, 2 м2 - кабинет- 33, 1 м2 - кабинет- 11, 7 м2 - кабинет- 19,2 м2 - кабинет- 8,6 м2 - кабинет- 4,5 м2 - санузел- 5, 6 м2 - санузел- 1,9 м2 - два балкона Стоимость: $120 000 + услуги агентства недвижимости
Оновлено: 13 червня 2023
Розміщено: 16 листопада 2022
Вам также могут подойти
Оновлено: 24 вересня
Розміщено: 26 червня
2 кімн., площа 93.5, поверх 1/5
г. Полтава, Петлюри Симона
120000 $
Остапченко Александр Степанович
соучредитель (Агентство недвижимости "Альянс риэлти" Полтава )
Пропонується до продажу нежиле приміщення в жилому будинку загальною площею- 93,4 м² Основні характеристики: - місцерозташування: район зупинки ОЦЕВУМ - поверх: 1-й з виходом на фасадну частину будівлі - загальна…
Детальніше
Оновлено: вчора
Розміщено: 13 серпня 2024
9 кімн., площа 164, поверх 1/-
г. Полтава, Н. Сотни
120000 $
Остапченко Александр Степанович
соучредитель (Агентство недвижимости "Альянс риэлти" Полтава )
Продаж офісного приміщення на Подолі по вул. Н. Сотні (зуп. Оптика, р-н маг. АТБ) з окремим входом з фасаду будинку, загальною площею 164 м2 на 9 кабінетів Характеристики: -1 поверх,…
Детальніше
Оновлено: 24 вересня
Розміщено: 26 червня
2 кімн., площа 93.5, поверх 1/5
г. Полтава, Петлюри Симона
120000 $
Остапченко Александр Степанович
соучредитель (Агентство недвижимости "Альянс риэлти" Полтава )
Пропонується до продажу нежиле приміщення в жилому будинку загальною площею- 93,4 м² Основні характеристики: - місцерозташування: район зупинки ОЦЕВУМ - поверх: 1-й з виходом на фасадну частину будівлі - загальна…
Детальніше
Коментарі