Вхід на сайт

Ел. пошта:
Пароль:

Реєстрація на сайті

Призвіще: Область:
Ім'я: Населений пункт:
    По батькові: Номер телефону:
    Ел. пошта: Компанія:
      Пароль: Посада:
      Повторіть пароль: Рік початку роботи:
      Фото:
      З правилами розміщення об'єктів погоджуюсь

      Забули пароль?

      Вкажіть ел. пошту — ми надішлемо Вам новий пароль для входу
      Ел. пошта:

      Проблема на сайті

      Закрити
      Ваш e-mail:
      (необов'язково)
      Розкажіть нам, що сталось

      пр. Московский, 270 В — Продається квартира в новобудові

      (г. Харьков, Орджоникидзевский район)

      30900 $

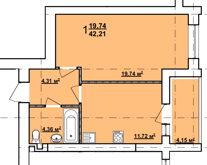
      Загальна площа: 42 кв.м

      Жила площа: 20 кв.м

      Площа кухні: 12 кв.м

      Кімнат: 1

      Поверх: 7

      К-ть поверхів: 9

      Продаю шикарную однокомнатную квартиру общей площадью 42.21 м2 в новострое ЖК Мира-3, строительный адрес дом 3 (одноподъездный, свечка), самого надёжного Харьковского застройщика АО Трест Жилстрой-1. Плановая сдача дома в декабре 2021 г., к ремонту можно приступать в апреле 2022 года. Квартира находится на седьмом этаже, девятиэтажного дома с наружным утеплением стен. Не угловая, не торцевая. Окна во двор. В квартире установлены межкомнатные перегородки, металлическая дверь, метало-пластиковые окна, горизонтальная разводка отопления с установкой радиаторов (есть возможность установки индивидуального счётчика тепла), счётчик электроэнергии. В доме предусмотрены электрические кухонные плиты. ЖК Мира 3 находится на пересечении Московского проспекта и проспекта Индустриального (бывший пр-т Фрунзе) ул. Мира и ул. 12 Апреля в минутной пешей доступности к станции метро Индустриальная. Развитая инфраструктура, непосредственная близость метро, удобная транспортная развязка, наличие рядом парка, рынка, супермаркетов, детских садов, школ и больниц создает все условия для комфортной и счастливой жизни. В комплексе предусмотрено облагораживание придомовой территории, оборудованные детские площадки, комфортные зоны отдыха и занятий спортом, а также выделенная парковочная зона для гостей на придомовой территории. Оформление в офисе треста Жилстрой-1. Звонки и заявки на просмотры квартир принимаются ежедневно с 9.00 до 19.00.

      Озеров Александр

      Озеров Александр Александрович

      заместитель директора департамента первичной недвижимости (КРОНА Производственно-правовая фирма)

      +380 (50) 135-35... Показати номер телефона +380 (50) 135-35-07

      Поскаржитися на об'єкт

      Надіслати скаргу

      Закрити
      Поскаржитися на об'єкт «пр. Московский, 270 В (г. Харьков, Орджоникидзевский район)»
      Ваш коментар:(Необов'язково)
      Ваша скарга буде надіслана ріелтору, що розмістив об'єкт, а також адміністрації сайту АФНУ.
      Ваше ім'я:
      (Обов'язково)
      Ваш e-mail для відповіді:
      (Обов'язково)

      Коментарі