ул. Елизаветинская, 2Б/7 — Продається квартира в новобудові
(г. Харьков, Червонозаводский район)
62500 $
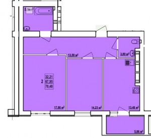
Загальна площа: 70 кв.м
Жила площа: 32 кв.м
Площа кухні: 13 кв.м
Кімнат: 2
Поверх: 9
К-ть поверхів: 16
Продаю двухкомнатную, квартиру в новострое самого надёжного Харьковского застройщика АО Треста Жилстрой 1, ЖК Левада-2, дом 7, секция А. В десяти минутах неспешной ходьбы от станции метро "Проспект Гагарина". Ещё пять минут пешком и Вы гуляете по Красношкольной набережной, ещё пара минут и Вы в центре Харькова. Квартира находится на девятом этаже шестнадцатиэтажного дома. Общая площадь 70. 48 м2, жилая 32.21 м2., а из кухни 13.48 м2 выход на лоджию 5.06 м2. В комплектацию квартиры входят: метало-пластиковые окна, металлическая входная дверь, радиаторы отопления, горизонтальная разводка отопления (есть возможность установки индивидуального счётчика на тепло), электрический счётчик, два сан узла. Также в доме предусмотрены электрические кухонные плиты. В этом районе отлично развита инфраструктура. Супермаркеты Таврия В, АТБ, Класс, аптеки, школы, детские сады, спорткомплекс "Рекорд", станция ЖД "Левада", автовокзал, компьютерная академия "Шаг" ... находятся не дальше чем за 500 метров от... возможно именно Вашего будущего дома. О преимуществах жизни в новострое можно рассказывать часами, но... в первую очередь это... Наружное утепление дома, все коммуникации новые, два бесшумных лифта, новые технологии строительства, закрытый двор, детская площадка, автомобильный паркинг, облагороженная придомовая территория. Плановая сдача дома в декабре 2021 года, к ремонту можно приступат в апреле 2022 года. Удачные планировки квартир и высокое качество строительства не оставят равнодушными даже самых взыскательных покупателей. Оформление проходит в офисе Треста Жилстрой-1. Звонки и заявки на просмотры квартир принимаются ежедневно с 9.00 до 19.00.