без комісії
ул. Авиационная, 39 — Продається квартира в новобудові
(г. Харьков, Дзержинский район)
2259100 грн.
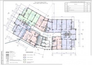
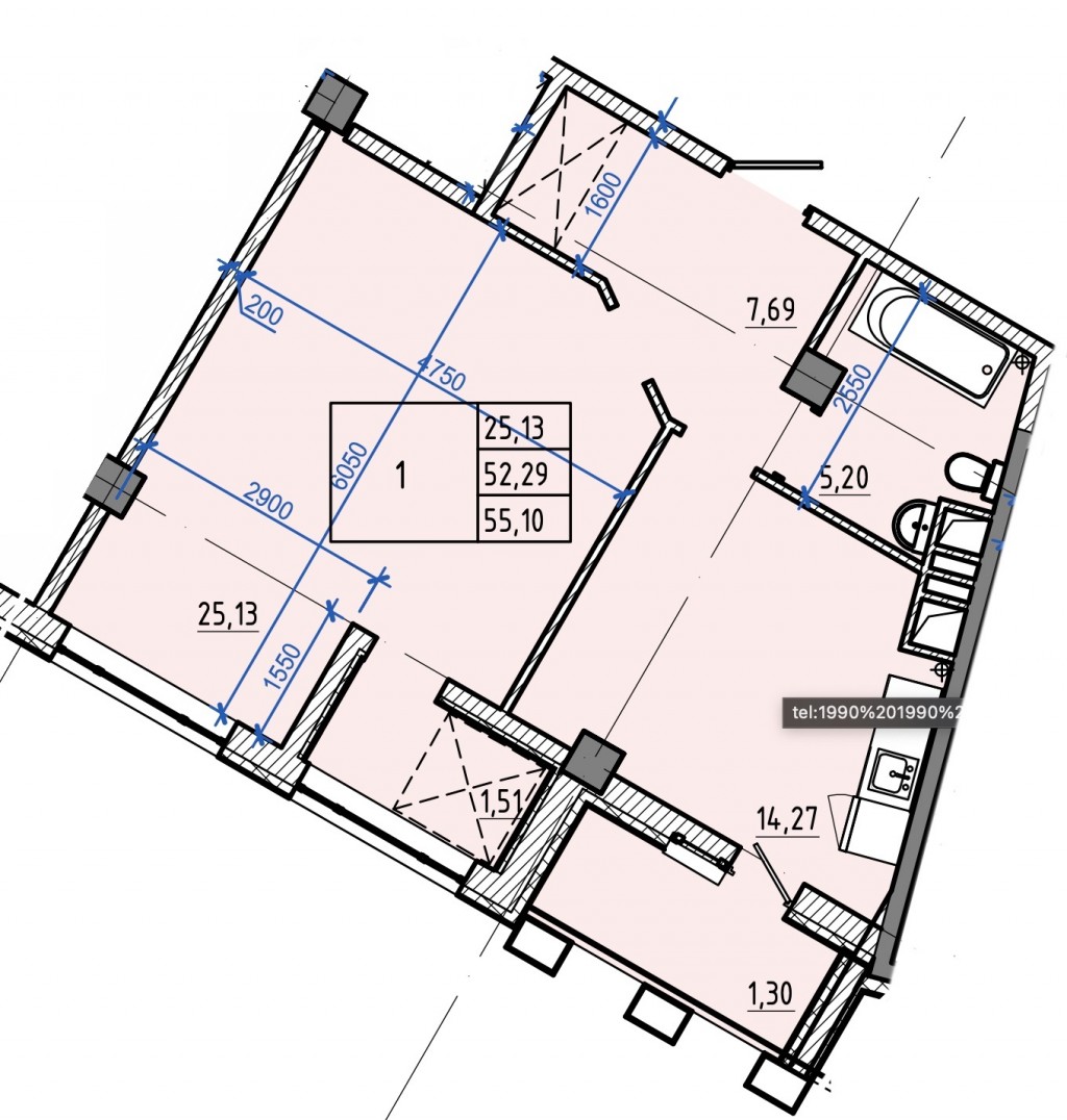
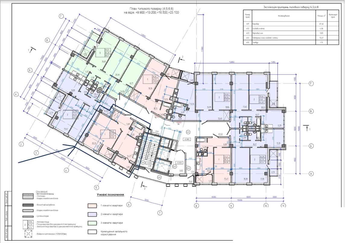
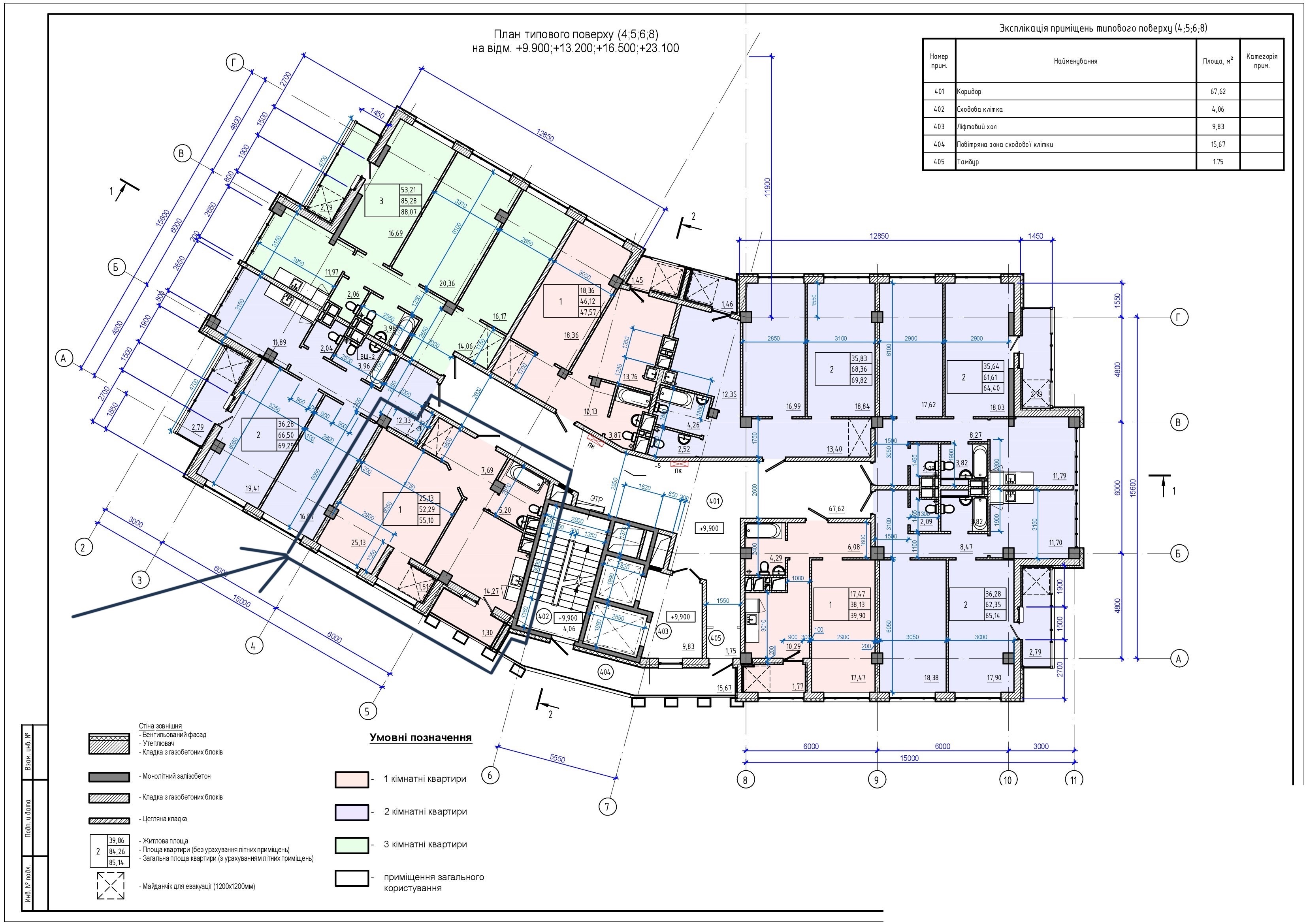
Загальна площа: 55.1 кв.м
Жила площа: 25 кв.м
Площа кухні: 14 кв.м
Кімнат: 1
Поверх: 5
К-ть поверхів: 16
БЕЗ КОМІСІЇ, за ціною забудовника, продається 1-кімнатна квартира ЖК Авіаційна, за адресою вул., Авіаційна, 39. В радіусі 2 км. від комплексу розташовані: метро Ботанічний сад та Наукова, кафе, ресторани, бари, спорткомплекс "Динамо", парк ім. Горького, школи і садочки. На території самого комплексу планують дитячі ігровий та спортивний майданчик з тротуарами та озелененням, підземний паркінг. - Квартира розташована в будинку № 2 - здача в 4 кварталі 2022 року. Площа квартири: Загальна площа - 55.1 м²; Житлова площа - 25 м²; Кухня - 14 м². - ПОТРІБНО КАПІТАЛЬНИЙ РЕМОНТ. КОМПЛЕКТАЦІЯ КВАРТИР: • встановлені перегородки як зазначено на плані; • металопластикові вікна; • горизонтальна розводка опалення та радіатори опалення (є можливість поставити лічильник на тепло, регулятори на батареї і контролювати подачу тепла в квартиру індивідуально); • вхідні залізні двері; • лічильник на електрику; • підведені комунікації (холодна, гаряча вода); • каналізація; • заведено електрику; • зроблено зовнішнє утеплення стін (утеплювач мінеральна вата 100 мм). - Буду радий Вас чути): Пн-Пт - 8: 00-20: 00. Сб-Нд - II: 00-20: 00 Святкові дні - вихідний.