Вхід на сайт

Ел. пошта:
Пароль:

Реєстрація на сайті

Призвіще: Область:
Ім'я: Населений пункт:
    По батькові: Номер телефону:
    Ел. пошта: Компанія:
      Пароль: Посада:
      Повторіть пароль: Рік початку роботи:
      Фото:
      З правилами розміщення об'єктів погоджуюсь

      Забули пароль?

      Вкажіть ел. пошту — ми надішлемо Вам новий пароль для входу
      Ел. пошта:

      Проблема на сайті

      Закрити
      Ваш e-mail:
      (необов'язково)
      Розкажіть нам, що сталось

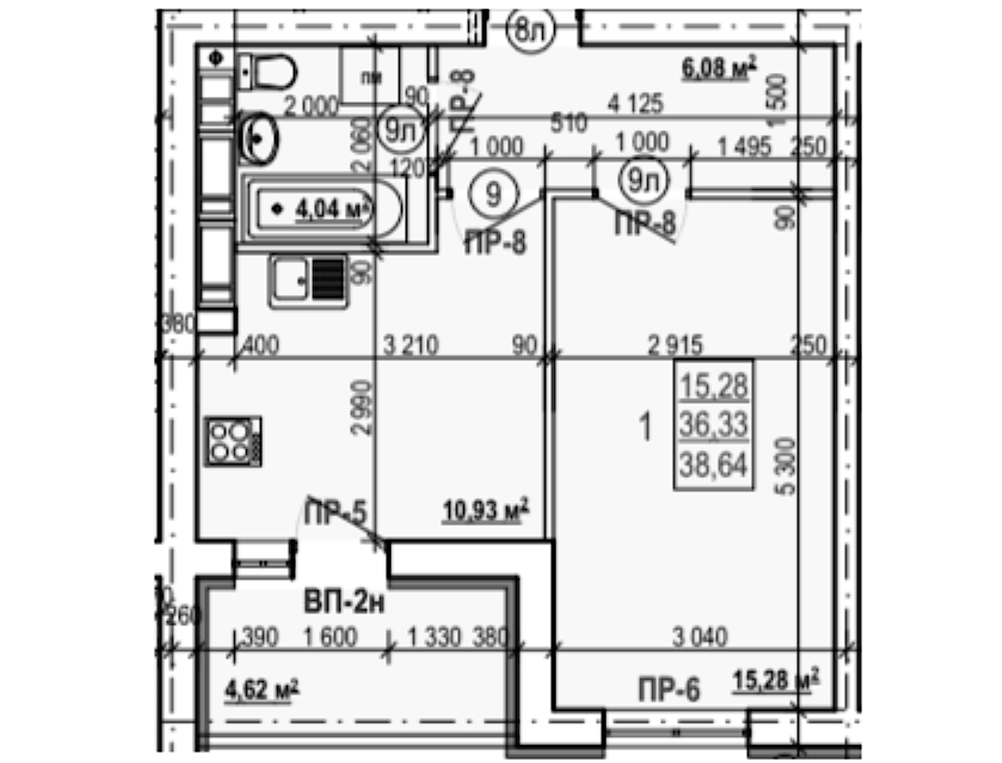
      Валентиновская, 49 — Продається квартира в новобудові

      (г. Харьков, Московский район)

      23500 $

      Загальна площа: 40 кв.м

      Жила площа: 16 кв.м

      Площа кухні: 10 кв.м

      Кімнат: 1

      Поверх: 6

      К-ть поверхів: 9

      Внимание! Продам 1к квартиру в новом жилом комплексе от надежного застройщика ЖилСтрой № 1 ЖК «Валентиновский» расположенный по адресу ул Валентиновская 49. Квартира расположена на 6-м этаже/ 9-ти этажного кирпичного дома. Площадь 39,64м2. Продажа по переуступке. Сдача дома декабрь 2021г. ТОРГ!

      Надіслати скаргу

      Закрити
      Поскаржитися на об'єкт «Валентиновская, 49 (г. Харьков, Московский район)»
      Ваш коментар:(Необов'язково)
      Ваша скарга буде надіслана ріелтору, що розмістив об'єкт, а також адміністрації сайту АФНУ.
      Ваше ім'я:
      (Обов'язково)
      Ваш e-mail для відповіді:
      (Обов'язково)

      Вам также могут подойти

      ул. Блюхера, 49 (г. Харьков, Московский район) - Продається квартира, 20000 $ - АФНУ

      Оновлено: 21 лютого

      Розміщено: 27 квітня 2023

      Продається квартира

      1 кімн., площа 44/17/13, поверх 3/9

      г. Харьков, ул. Блюхера, 49

      20000 $

      Нечай Александр Викторович

      Дуже Терміново! Продам 1к квартиру в новобудові ЖилоБуд 1 в житловому комплексі Валентинівський. Комплекс розташована на Салтівці по вул Валентинівська 49 будівельна адреса будинок № 11. Загальна площа квартири 44м2,…

      Детальніше

      шевченківський пров, 48 (г. Харьков, Киевский район) - Продається квартира в новобудові, 22000 $ - АФНУ

      Оновлено: 21 лютого

      Розміщено: 28 січня 2023

      Продається квартира в новобудові

      1 кімн., площа 40/18/10, поверх 4/9

      г. Харьков, шевченківський пров, 48

      22000 $

      Нечай Александр Викторович

      Терміново! Продам 1к ізольвану квартиру в новобудові ЖК “Птичка” разташовану за адресою пров. Шевченкивськый 48 будивельна адреса дим 20 секция А Дім собою представляє цегляну теплу новобудову від надійного забудовника…

      Детальніше

      ул. Блюхера, 49 (г. Харьков, Московский район) - Продається квартира, 20000 $ - АФНУ

      Оновлено: 21 лютого

      Розміщено: 27 квітня 2023

      Продається квартира

      1 кімн., площа 44/17/13, поверх 3/9

      г. Харьков, ул. Блюхера, 49

      20000 $

      Нечай Александр Викторович

      Дуже Терміново! Продам 1к квартиру в новобудові ЖилоБуд 1 в житловому комплексі Валентинівський. Комплекс розташована на Салтівці по вул Валентинівська 49 будівельна адреса будинок № 11. Загальна площа квартири 44м2,…

      Детальніше

      Коментарі