Вхід на сайт

Ел. пошта:
Пароль:

Реєстрація на сайті

Призвіще: Область:
Ім'я: Населений пункт:
    По батькові: Номер телефону:
    Ел. пошта: Компанія:
      Пароль: Посада:
      Повторіть пароль: Рік початку роботи:
      Фото:
      З правилами розміщення об'єктів погоджуюсь

      Забули пароль?

      Вкажіть ел. пошту — ми надішлемо Вам новий пароль для входу
      Ел. пошта:

      Проблема на сайті

      Закрити
      Ваш e-mail:
      (необов'язково)
      Розкажіть нам, що сталось

      пр. Московский, 259 — Продається склад

      (г. Харьков, Фрунзенский район)

      205000 $

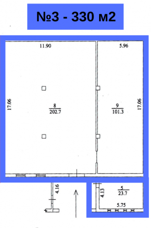
      Загальна площа: 330 кв.м

      К-ть поверхів: 1

      Продажа помещения на территории оптовой базы пр-т Московский, 259:

      • площадь 330 м2
      • одноэтажное здание
      • цена продажи 205 000 USD
      • с действующим арендатором

      Валовая доходность: 9,02% (курс 28,75)

      Характеристики объекта:
      • общая площадь 330 м2 (из них 23 м2 - офис)
      • отдельный вход
      • помещение с ремонтом
      • парковка
      • большие въездные ворота

      Коммуникации:
      • электроэнергия
      • водоснабжение/водоотведение
      • пожарная сигнализация

      Преимущества:
      • в соседнем помещении отделение Новой почты
      • 2 мин до супермаркета КЛАСС
      • 5 мин до ст.м. Дворец спорта (ранее Маршала Жукова)

      Остались вопросы?
      Пишите Viber / Telegram или звоните + 38 (095) 769-73-33, мы с радостью Вам ответим.
      компания stepREALTY

      Надіслати скаргу

      Закрити
      Поскаржитися на об'єкт «пр. Московский, 259 (г. Харьков, Фрунзенский район)»
      Ваш коментар:(Необов'язково)
      Ваша скарга буде надіслана ріелтору, що розмістив об'єкт, а також адміністрації сайту АФНУ.
      Ваше ім'я:
      (Обов'язково)
      Ваш e-mail для відповіді:
      (Обов'язково)

      Коментарі