Вхід на сайт

Ел. пошта:
Пароль:

Реєстрація на сайті

Призвіще: Область:
Ім'я: Населений пункт:
    По батькові: Номер телефону:
    Ел. пошта: Компанія:
      Пароль: Посада:
      Повторіть пароль: Рік початку роботи:
      Фото:
      З правилами розміщення об'єктів погоджуюсь

      Забули пароль?

      Вкажіть ел. пошту — ми надішлемо Вам новий пароль для входу
      Ел. пошта:

      Проблема на сайті

      Закрити
      Ваш e-mail:
      (необов'язково)
      Розкажіть нам, що сталось

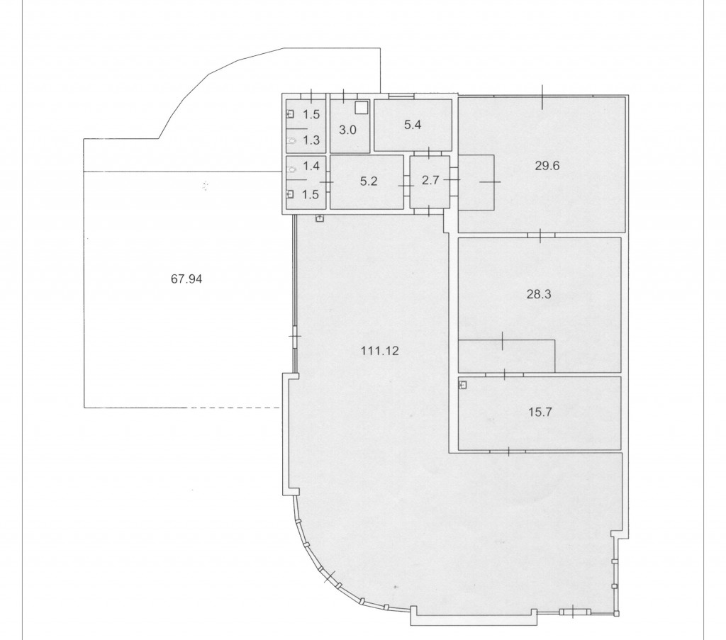
      ул. Степного фронта — Продається торгівельний майданчик

      (г. Полтава, Октябрьский район)

      350000 $

      Загальна площа: 210 кв.м

      Поверх: 1

      К-ть поверхів: 1

      Предлагаю нежилое отдельно стоящее помещение коммерческого назначения. Площадь помещения 210м2. Торговый зал 112м2. Хорошая транспортная развязка, красная линия. Объект идеально подходит под торговый бизнес.
      Цена договорная.

      Надіслати скаргу

      Закрити
      Поскаржитися на об'єкт «ул. Степного фронта (г. Полтава, Октябрьский район)»
      Ваш коментар:(Необов'язково)
      Ваша скарга буде надіслана ріелтору, що розмістив об'єкт, а також адміністрації сайту АФНУ.
      Ваше ім'я:
      (Обов'язково)
      Ваш e-mail для відповіді:
      (Обов'язково)

      Коментарі