Продаж квартири в ЖК Львівський маєток, адреса - с. Софіївська Борщагівка вул. Героїв Небесної Сотні, 36
Характеристики:
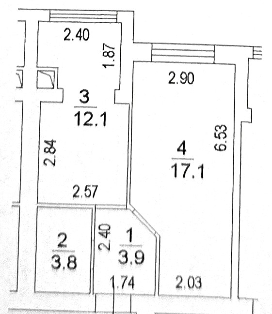
- Загальна площа: ~37 м² - Поверх: 7 - Гаряча вода та опалення від двоконтурного газового котла; – Є ліфт; - Квартира з візуально свіжим ремонтом без необхідності термінових вкладень.; - Важливо - формат - заїхати та жити або здати в оренду;
Планування (дуже вдале)
Простір грамотний на 3 повноцінні зони: Кухня з нормальною робочою зоною; Зона столової - лоджії; Повноцінна спальна кімната з двоспальним ліжком; Гардеробна кімната ну дуже простора;
Вид та комфорт
Нормальний вигляд з вікон, будинки теплі, з гарною енергоефективністю Сьомий поверх – без стресу, навіть якщо ліфт раптом не працює Вся техніка – якісні бренди, не «одноразові», є кондиціонер.
Пропозиція без комісії для покупця і без будь-яких прихованих платежів, що робить його вигіднішим, ніж більшість варіантів навколо.
Единим представником Власника є Агенція нерухомості ПІК
Без дублювання в рекламі Запис на перегляд по номеру в оголошенні або написати можна на телеграм - Realtor_PIK_Kiev
В ОЛХ переписка не ведеться Щоб отримати відео - Звертайтесь, будь ласка в телеграм або вайбер за номером в оголошенні