Вхід на сайт

Ел. пошта:
Пароль:

Реєстрація на сайті

Призвіще: Область:
Ім'я: Населений пункт:
    По батькові: Номер телефону:
    Ел. пошта: Компанія:
      Пароль: Посада:
      Повторіть пароль: Рік початку роботи:
      Фото:
      З правилами розміщення об'єктів погоджуюсь

      Забули пароль?

      Вкажіть ел. пошту — ми надішлемо Вам новий пароль для входу
      Ел. пошта:

      Проблема на сайті

      Закрити
      Ваш e-mail:
      (необов'язково)
      Розкажіть нам, що сталось

      ул. Театральная, 10 — Здається офіс

      (г. Хмельницкий, центр)

      2200 грн.

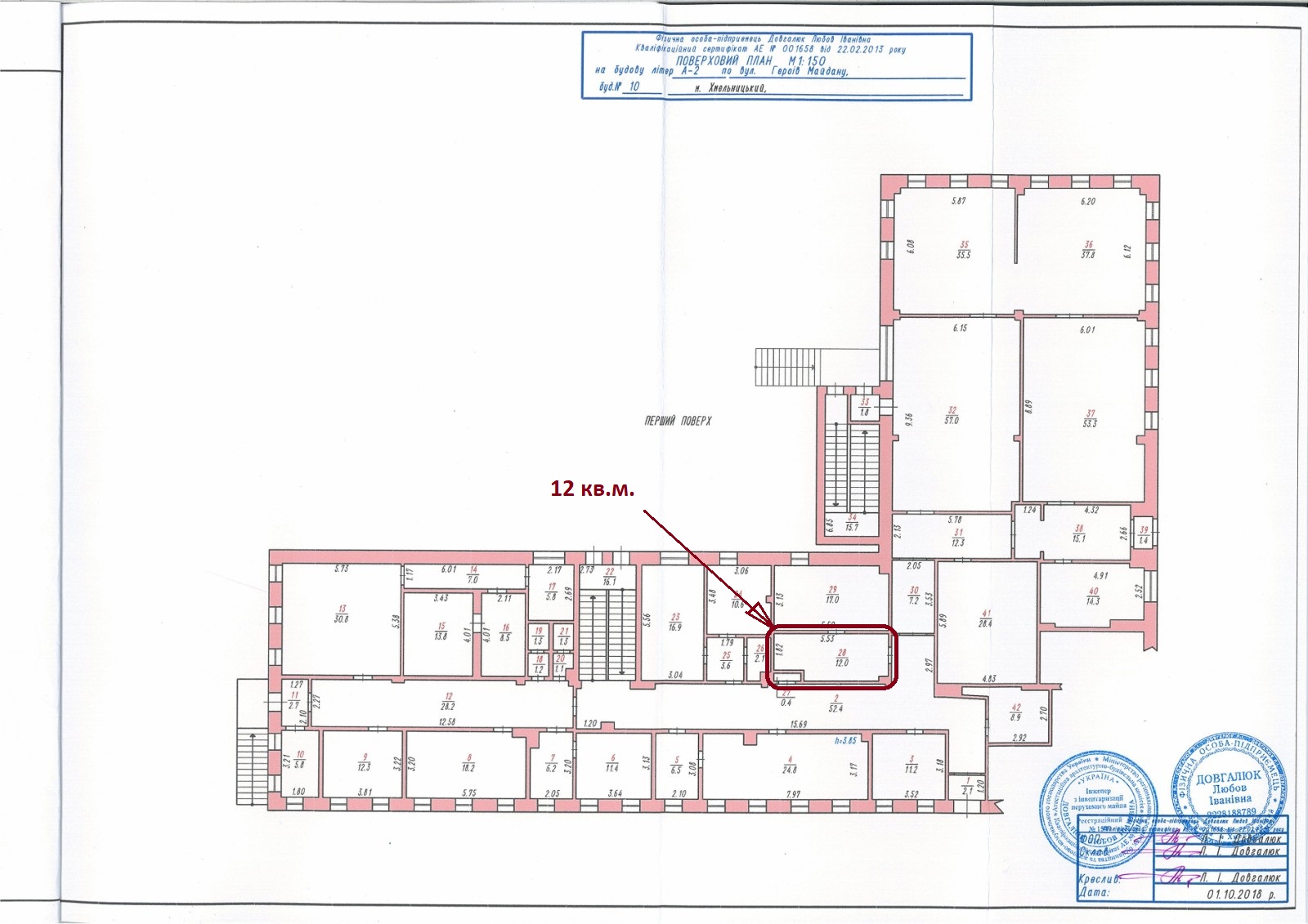
      Загальна площа: 12 кв.м

      Кімнат: 1

      Поверх: 1

      К-ть поверхів: 2

      Здам в оренду приміщення. Центр, вул.Героїв Майдану (Театральна) 10. (Поруч з податковою)
      1-й поверх. Цілодобовий доступ.
      Площа: 12 кв.м.
      Вартість: 2200грн/місяць + світло по лічильнику
      Оплата: 1й і останній місяць + разово комісійні агентства.
      Санвузол на поверсі.
      Без опалення. Без меблів. Вільне з 15 лютого.
      Показ по попередній домовленості.

      Надіслати скаргу

      Закрити
      Поскаржитися на об'єкт «ул. Театральная, 10 (г. Хмельницкий, центр)»
      Ваш коментар:(Необов'язково)
      Ваша скарга буде надіслана ріелтору, що розмістив об'єкт, а також адміністрації сайту АФНУ.
      Ваше ім'я:
      (Обов'язково)
      Ваш e-mail для відповіді:
      (Обов'язково)

      Вам также могут подойти

      Героїв Маріуполя, 10 (г. Хмельницкий, Центр) - Здається офіс, 2200 грн. - АФНУ

      Оновлено: 19 лютого

      Розміщено: 26 січня

      Здається офіс

      1 кімн., площа 12, поверх 2/2

      г. Хмельницкий, Героїв Маріуполя, 10

      2200 грн.

      Бурдельний Микола Станіславович

      Спеціаліст з нерухомості (ЦН "Золотий ключ")

      Здам в оренду приміщення 12 м.кв. Центр, вул. Героїв Майдану (Театральна) 10. (Поруч з податковою). 1й поверх.
      Приміщення Площею 12 м.кв., правильної прямокутної форми, кабінет без вікон. Цілодобовий доступ. Санвузол…

      Детальніше

      Коментарі