Вхід на сайт

Ел. пошта:
Пароль:

Реєстрація на сайті

Призвіще: Область:
Ім'я: Населений пункт:
    По батькові: Номер телефону:
    Ел. пошта: Компанія:
      Пароль: Посада:
      Повторіть пароль: Рік початку роботи:
      Фото:
      З правилами розміщення об'єктів погоджуюсь

      Забули пароль?

      Вкажіть ел. пошту — ми надішлемо Вам новий пароль для входу
      Ел. пошта:

      Проблема на сайті

      Закрити
      Ваш e-mail:
      (необов'язково)
      Розкажіть нам, що сталось

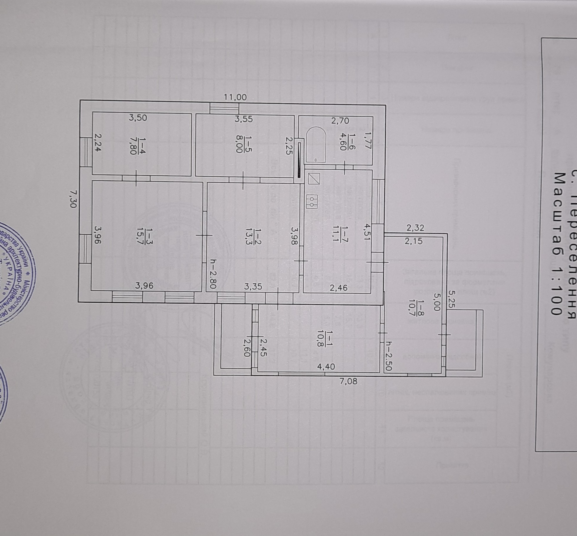
      Комунарська — Продається будинок

      (с. Переселенье, Кагарлыкский район)

      17000 $

      Загальна площа: 82 кв.м

      Площа ділянки: 36 сот

      Кімнат: 4

      К-ть поверхів: 1

      Пропонуємо цегляну хату майже в центрі села Переселення!

      недорога пропозиція, зручне розташування, поруч Кагарлик
      вісімдесят два метри, з газовим опаленням, є ванна кімната
      у дворі колодязь, льох, цегляний господарський блок
      ділянка тридцять шість соток з виходом на дві вулиці.

      Київська область. Обухівський район. Переселення. 17000$ США.
      + 380675059105 Вячеслав Петрович.

      Надіслати скаргу

      Закрити
      Поскаржитися на об'єкт «Комунарська (с. Переселенье, Кагарлыкский район)»
      Ваш коментар:(Необов'язково)
      Ваша скарга буде надіслана ріелтору, що розмістив об'єкт, а також адміністрації сайту АФНУ.
      Ваше ім'я:
      (Обов'язково)
      Ваш e-mail для відповіді:
      (Обов'язково)

      Коментарі