Продаж 2-х пов. будинок, 275 кв.м. вул. Цементників
Пропонуємо будинок, побудований з екологічно-чистих матеріалів. Рік побудови - 2011р.
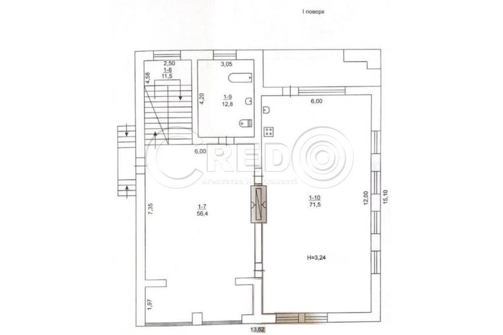
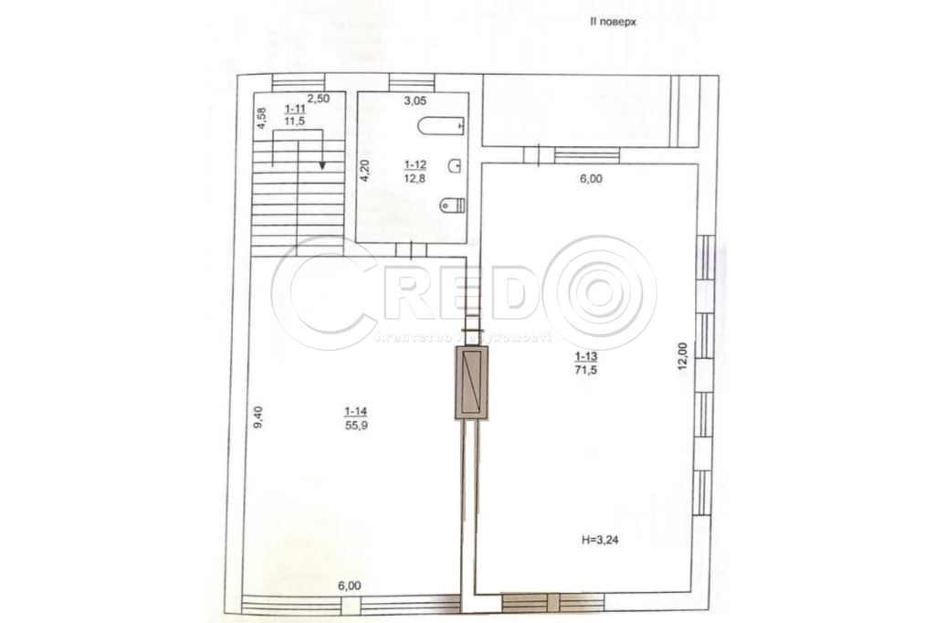
Про домовлодіння: - Загальна площа будинку 390 кв.м. - Житлова площа - 275 кв.м. - Земельна ділянка з ландшафтом 10 соток - Будинок готовий на 70%, без оздоблювальних робіт
Планування будинку: - Вільне планування - Виділені зони для відпочинку - басейн, лазня, сауна. - Високий цоколь, великий підвал.
Комунікації: - Центральне водопостачання та каналізація - Наявні умови для підведення електропостачання та газу.
Матеріали побудови: - При будівлі будинку використовувалися якісні екологічно чисті матеріали: - Основа - кримський ракушняк, обкладений клінкерною цеглою, утеплений мінеральною ватою "Техноніколь". - Дах - металочерепиця "IKO", вікна м/пл. "Winter"
Прибудинкова територія: - Огороджено кам'яним парканом - Автоматичні ворота - Альтанка для пікніка
Сад: - Різновид фруктових дерев
За будь-якими питаннями за цією або схожими пропозиціями звертайтесь за номером телефону, де вам відповість наш ріелтор Надія 098 985 09 08
Будинок розташований по вул.Черняховського, Центрально міський р-н. На території два житлових будинки та будинок для гостей з сауною. Чудовий сад, зона барбекю.