Вхід на сайт

Ел. пошта:
Пароль:

Реєстрація на сайті

Призвіще: Область:
Ім'я: Населений пункт:
    По батькові: Номер телефону:
    Ел. пошта: Компанія:
      Пароль: Посада:
      Повторіть пароль: Рік початку роботи:
      Фото:
      З правилами розміщення об'єктів погоджуюсь

      Забули пароль?

      Вкажіть ел. пошту — ми надішлемо Вам новий пароль для входу
      Ел. пошта:

      Проблема на сайті

      Закрити
      Ваш e-mail:
      (необов'язково)
      Розкажіть нам, що сталось

      без комісії Мисливська, 24 — Продається квартира

      (пгт. Гостомель, г. Ирпень)

      36000 $

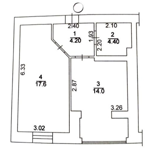
      Загальна площа: 40.2 кв.м

      Жила площа: 17.6 кв.м

      Площа кухні: 14 кв.м

      Кімнат: 1

      Поверх: 8

      К-ть поверхів: 10

      Однокімнатна квартира в ЖК Авіатор 1.
      Будинок зданий в 2021 році.

      Перспективна локація. Будинок знаходиться при в'їзді в Бучу, біля парку Щасливий.
      Близько до Києва - до великої кільцевої дороги 9 км.
      У пішому доступі супермаркет, аптека, магазини, кав'ярні, школа, дитячий садок та ін.

      Будинок цегляний.
      Площа квартири 40.2 кв.м.
      Поверх 8/10
      Опалення індивідуальне газове.

      Документи перевірені та готові до угоди.
      Можливий продаж по держпрограмах - єОселя 7%, сертифікат, 719,280 постанови.
      Всі деталі по телефону. Також на зв'язку у всіх месенджерах.
      Пишіть, телефонуйте.

      Надіслати скаргу

      Закрити
      Поскаржитися на об'єкт «Мисливська, 24 (пгт. Гостомель, г. Ирпень)»
      Ваш коментар:(Необов'язково)
      Ваша скарга буде надіслана ріелтору, що розмістив об'єкт, а також адміністрації сайту АФНУ.
      Ваше ім'я:
      (Обов'язково)
      Ваш e-mail для відповіді:
      (Обов'язково)

      Вам также могут подойти

      Мисливська, 24 (пгт. Гостомель, г. Ирпень) - Продається квартира, 36000 $ - АФНУ

      Оновлено: сьогодні

      Розміщено: 3 листопада

      Продається квартира

      1 кімн., площа 40/17/14, поверх 8/10

      пгт. Гостомель, г. Ирпень, Мисливська, 24

      36000 $ без комісії

      Кашперська Ольга Олексіївна

      Менеджер (Сімейна агенція нерухомості Liberty (сімейна АН Ліберті))

      Сщ. Гостомель, вул. Мисливська, буд. 24
      1к. квартира, площею 40.2 м2
      Поверх 8/10
      Опалення: індивідуальне газове
      Зроблено: стяжка підлоги, штукатурка стін, встановлений котел

      Поруч: школа, дитячий садочок, кав’ярні, аптеки, салони…

      Детальніше

      Коментарі