Вхід на сайт

Ел. пошта:
Пароль:

Реєстрація на сайті

Призвіще: Область:
Ім'я: Населений пункт:
    По батькові: Номер телефону:
    Ел. пошта: Компанія:
      Пароль: Посада:
      Повторіть пароль: Рік початку роботи:
      Фото:
      З правилами розміщення об'єктів погоджуюсь

      Забули пароль?

      Вкажіть ел. пошту — ми надішлемо Вам новий пароль для входу
      Ел. пошта:

      Проблема на сайті

      Закрити
      Ваш e-mail:
      (необов'язково)
      Розкажіть нам, що сталось

      ул. Волгоградская — Продається промисловість

      (г. Кривой Рог, Саксаганский район)

      48000 $

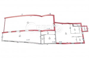
      Загальна площа: 275 кв.м

      К-ть поверхів: 1

      Продаж готового бізнесу, р-н «Мудрьона» вул. Вільної Ічкерії (Волгоградська)
      Готовий діючий бізнес з обладнанням
      Окремо розташована будівля.
      Земельна ділянка 16 соток - кадастровий номер, огорожена.

      Технічні характеристики:
      - Загальна площа будівлі 275.8кв.м, - столярний цех
      - лакофарбовий цех з вимушеною вентиляцією
      - шліфувальне та складське приміщення
      - меблевий цех
      - кабінет
      - кімната для персоналу
      - санвузол
      - топочна
      - висота приміщення Н- 3.00м

      Особливості об`єкту:
      - два фрезера
      - два фуганка 400/600
      - циркулярка
      - токарний верстат
      - довбальний верстат
      - рейсмус 600 по дереву
      - компресор для фарбування з тригером
      - два циклони для дерева

      Комунікації:
      - електроенергія 380V, три фази.
      - центральне водопостачання та каналізація,

      Локація:
      Об’єкт розташований поряд з центральною дорогою
      В центрі міста

      Продаж 48 000$ договірна

      За будь-якими питаннями за цією або схожими пропозиціями звертайтесь за номером телефону, де вам відповість наш ріелтор Надія 098 985 09 08

      Надіслати скаргу

      Закрити
      Поскаржитися на об'єкт «ул. Волгоградская (г. Кривой Рог, Саксаганский район)»
      Ваш коментар:(Необов'язково)
      Ваша скарга буде надіслана ріелтору, що розмістив об'єкт, а також адміністрації сайту АФНУ.
      Ваше ім'я:
      (Обов'язково)
      Ваш e-mail для відповіді:
      (Обов'язково)

      Вам также могут подойти

      Книжна (г. Кривой Рог, Саксаганский район) - Продається промисловість, 49000 $ - АФНУ

      Оновлено: 25 листопада 2025

      Розміщено: 9 жовтня 2025

      Продається промисловість

      г. Кривой Рог, Книжна

      49000 $

      Літвинова Ірина Вікторівна

      Продаж території вул. Книжна, Дзержинка.
      Майстерня машинобудівна з обладнанням.
      Земельна ділянка 60 соток - огорожена, кадастровий номер.

      Технічні характеристики:
      - Загальна площа будівлі 275.8 кв.м
      - адмін. побутові приміщення 210.95кв.м…

      Детальніше

      Монастирська (г. Кривой Рог, Жовтневый район) - Продається промисловість, 47000 $ - АФНУ

      Оновлено: 15 грудня 2025

      Розміщено: 16 травня 2025

      Продається промисловість

      г. Кривой Рог, Монастирська

      47000 $

      Літвинова Ірина Вікторівна

      Продаж виробничо-складської будівлі, район Фрунзе.
      - Покровський район
      - вул. Монастирська (Фрунзе)

      Технічні характеристики:
      - двоповерхова будівля
      - два бокси
      - огорожена територія

      Планування об’єкту:
      - загальна площа - 2000кв.м…

      Детальніше

      Книжна (г. Кривой Рог, Саксаганский район) - Продається промисловість, 49000 $ - АФНУ

      Оновлено: 25 листопада 2025

      Розміщено: 9 жовтня 2025

      Продається промисловість

      г. Кривой Рог, Книжна

      49000 $

      Літвинова Ірина Вікторівна

      Продаж території вул. Книжна, Дзержинка.
      Майстерня машинобудівна з обладнанням.
      Земельна ділянка 60 соток - огорожена, кадастровий номер.

      Технічні характеристики:
      - Загальна площа будівлі 275.8 кв.м
      - адмін. побутові приміщення 210.95кв.м…

      Детальніше

      Коментарі