Вхід на сайт

Ел. пошта:
Пароль:

Реєстрація на сайті

Призвіще: Область:
Ім'я: Населений пункт:
    По батькові: Номер телефону:
    Ел. пошта: Компанія:
      Пароль: Посада:
      Повторіть пароль: Рік початку роботи:
      Фото:
      З правилами розміщення об'єктів погоджуюсь

      Забули пароль?

      Вкажіть ел. пошту — ми надішлемо Вам новий пароль для входу
      Ел. пошта:

      Проблема на сайті

      Закрити
      Ваш e-mail:
      (необов'язково)
      Розкажіть нам, що сталось

      Дніпровське шосе — Продається торгівельний майданчик

      (г. Кривой Рог, Долгинцевский район)

      135000 $

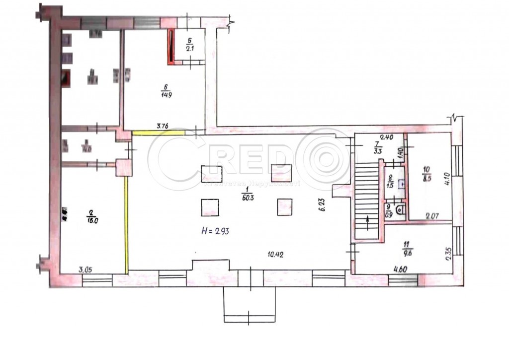
      Загальна площа: 190 кв.м

      Поверх: 1

      К-ть поверхів: 3

      Продаж магазину вул.Дніпровське шосе,2
      - Довгинцівський район
      - розташоване на кільці автовокзалу

      Технічні характеристики:
      - перший поверх 3-ти поверхового житлового будинку
      - "червона лінія"
      - приміщення в гарному стані
      - кутове
      - збоку парковка
      - в оренді аптека 8 років

      Планування об’єкту:
      - загальна площа-190 кв.м
      - перший поверх-132,2 кв.м; висота стелі-2,93 м
      - підвал -58 кв.м; висота стелі-2,40 м
      - центральний та додатковий входи

      Комунікації:
      - опалення газове (котел)
      - центральне електропостачання 15кВт; 380 Вт
      - центральне водопостачання, каналізація

      Логістична розв’язка:
      - приміщення розташоване в центральній частині міста
      - поруч зупинки громадського транспорту
      - супермаркет "АТБ", магазини, аптеки та безліч інших магазинів
      - великий автомобільний та пішохідний трафік

      Ідеальне місце разташування, як під свій бізнес, так і під інвестицію.
      Продаж 135 000$

      За будь-якими питаннями за цією або іншими пропозиціями звертайтесь за номером телефону 067 696 16 51.
      З повагою, команда Credo!

      Надіслати скаргу

      Закрити
      Поскаржитися на об'єкт «Дніпровське шосе (г. Кривой Рог, Долгинцевский район)»
      Ваш коментар:(Необов'язково)
      Ваша скарга буде надіслана ріелтору, що розмістив об'єкт, а також адміністрації сайту АФНУ.
      Ваше ім'я:
      (Обов'язково)
      Ваш e-mail для відповіді:
      (Обов'язково)

      Вам также могут подойти

      ул. Космонавтов (г. Кривой Рог, Саксаганский район) - Продається торгівельний майданчик, 150000 $ - АФНУ

      Оновлено: 14 листопада

      Розміщено: 25 липня 2019

      Продається торгівельний майданчик

      площа 753, поверх -/2

      г. Кривой Рог, ул. Космонавтов

      150000 $

      Літвинова Ірина Вікторівна

      Продаж окремої будівлі в Саксаганському р-ні, вул. Космонавтів, р-н "Вечірній"

      Про об'єкт:
      - Загальна площа 753.74кв.м.
      - Земельна ділянка 10 соток – кадастровий номер

      Особливості:
      - Високий автомобільний та пішохідний…

      Детальніше

      ул. Погребняка (г. Кривой Рог, Центрально-Городской район) - Продається торгівельний майданчик, 119000 $ - АФНУ

      Оновлено: 5 листопада

      Розміщено: 25 вересня 2020

      Продається торгівельний майданчик

      площа 193, поверх 1/3

      г. Кривой Рог, ул. Погребняка

      119000 $

      Літвинова Ірина Вікторівна

      Продаж магазину на "Карачунах".
      - Центрально Міський район
      - вул. Алмазна, 4

      Технічні характеристики:
      - перший поверх 5-ти поверхового житлового будинку
      - "червона лінія"
      - приміщення в робочому станні
      -…

      Детальніше

      пр. Карла Маркса (г. Кривой Рог, Центрально-Городской район) - Продається торгівельний майданчик, 150000 $ - АФНУ

      Оновлено: 14 листопада

      Розміщено: 1 березня 2024

      Продається торгівельний майданчик

      площа 242, поверх 2/5

      г. Кривой Рог, пр. Карла Маркса

      150000 $

      Літвинова Ірина Вікторівна

      Продаж приміщення в Центрально Міському районі,
      пр. Поштовий

      Про об’єкт:
      - приміщення розташоване на 2-му поверсі, окремої торгово-офісної будівлі.

      Планування об’єкту:
      - загальна площа: 242,3 кв.м.
      - основний зал -…

      Детальніше

      Коментарі