Вхід на сайт

Ел. пошта:
Пароль:

Реєстрація на сайті

Призвіще: Область:
Ім'я: Населений пункт:
    По батькові: Номер телефону:
    Ел. пошта: Компанія:
      Пароль: Посада:
      Повторіть пароль: Рік початку роботи:
      Фото:
      З правилами розміщення об'єктів погоджуюсь

      Забули пароль?

      Вкажіть ел. пошту — ми надішлемо Вам новий пароль для входу
      Ел. пошта:

      Проблема на сайті

      Закрити
      Ваш e-mail:
      (необов'язково)
      Розкажіть нам, що сталось

      ул. Попова — Продається будинок

      (г. Кривой Рог, Долгинцевский район)

      37000 $

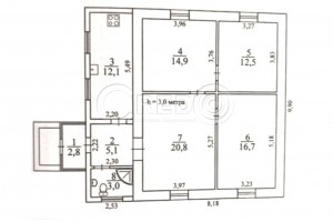
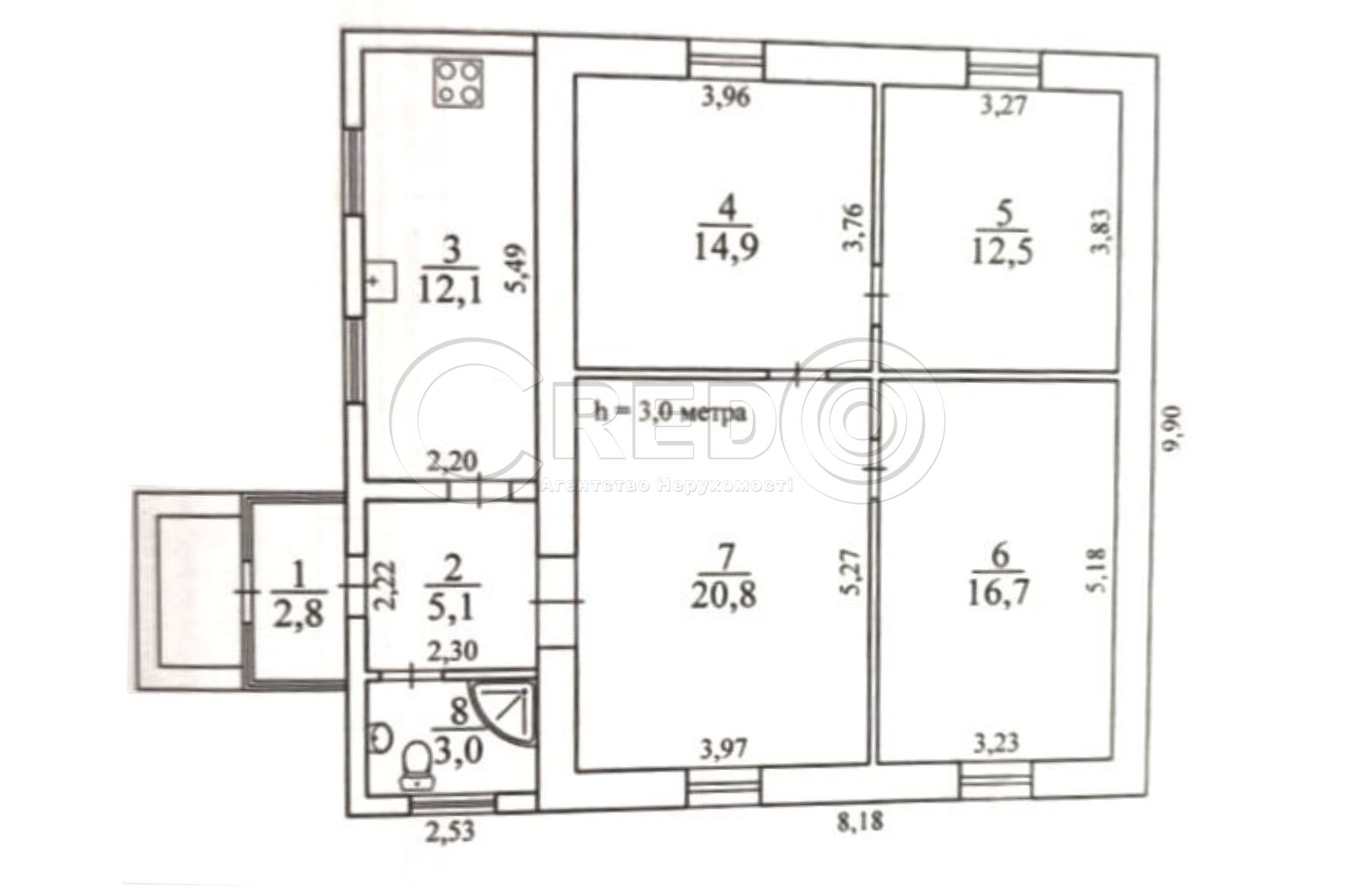
      Загальна площа: 87 кв.м

      Площа ділянки: 7 сот

      Кімнат: 4

      К-ть поверхів: 1

      Пропонуємо до продажу 4кімнатний будинок на Довгинцево,
      вул.Краєвидна (раніше Попова),район станції Новоблочна.
      Широка, асфальтована вулиця з гарними будинками та
      місцевою продуктовою крамничкою. Відносно не далеко
      розташована Міська лікарня № 10.

      Про об'єкт:
      - міцний, цегляний будинок загальною площею 87,9 м.кв.
      - 4 кімнати житлової площі 64,9 м.кв.
      - капітальний гараж.
      - господарські будівлі.
      - вольєр для собак.
      - глибокий підвал.
      - 7,5 соток приватизованої землі.

      Планування об'єкту:
      - будинок має 4 житлові кімнати:
      20.8 + 16,7 + 14,9 + 12,5 м.кв.
      - обладнана кухня 12 м.кв.
      - санвузол з душовою кабіною.
      - передпокій та скляне тамбурне приміщення.
      - високі стелі 3 м.

      Комунікації та особливості об'єкту:
      - будинок обладнаний водопроводом та місцевою
      каналізацією (вигідно по оплаті)
      - опалення виконується двома різними видами котлів:
      газовий і твердопаливний.
      - кімнати відремонтовані та мебльовані.
      - вікна для безпеки посилені гратами.
      - високе чердачне приміщення з можливістю
      переобладнання в житловий поверх.
      - на території є закрита альтанка, дитячий майданчик
      з гойдалкою, сухий погріб.
      - дуже охайний город, плодові дерева, квітник.

      Локація:
      - розташування у великому районі приватного сектору.
      - вулиця Попова межує з транспортною артерією
      вул.Високовольтна з виїздом на вул.Вернадського.
      - громадський транспорт тролейбуси № 20,21,22.
      - будинок рівновіддалений як від Міської лікарні №10
      так і від загальноосвітньої школи №88.
      - вокзал, ринок, АТБ, район Дружба - до 5 хвилин на авто.

      Ціна 37 000 $
      За будь-якими питаннями за цією або схожими пропозиціями звертайтесь за номером телефону, де вам відповість наш ріелтор 067 982 17 19
      З повагою, АН CREDO

      Надіслати скаргу

      Закрити
      Поскаржитися на об'єкт «ул. Попова (г. Кривой Рог, Долгинцевский район)»
      Ваш коментар:(Необов'язково)
      Ваша скарга буде надіслана ріелтору, що розмістив об'єкт, а також адміністрації сайту АФНУ.
      Ваше ім'я:
      (Обов'язково)
      Ваш e-mail для відповіді:
      (Обов'язково)

      Вам также могут подойти

      ул. Гете (г. Кривой Рог, Центрально-Городской район) - Продається будинок, 40000 $ - АФНУ

      Оновлено: 7 жовтня

      Розміщено: 28 серпня 2023

      Продається будинок

      г. Кривой Рог, ул. Гете

      40000 $

      Літвинова Ірина Вікторівна

      Продаж будинку у казковій місцині Центрально-Міського району "Скелі МОДРу".

      Цікава пропозиція - продаж будинку на березі Інгульця у природно-заповідній зоні "Скелі МОДРу". Геологічна пам’ятка природи загальнодержавного значення.
      Чудовий вид на…

      Детальніше

      ул. Вольная (г. Кривой Рог, Саксаганский район) - Продається будинок, 34000 $ - АФНУ

      Оновлено: 11 листопада

      Розміщено: 7 травня

      Продається будинок

      г. Кривой Рог, ул. Вольная

      34000 $

      Літвинова Ірина Вікторівна

      Пропонуємо до продажу добротний будинок з великою ділянкою біля міської лікарні №5, вулиця Вільна.
      Географічне розташування середина міста Кривий Ріг.
      Однакова відстань як до південних так і до північних районів.…

      Детальніше

      Коментарі