Вхід на сайт

Ел. пошта:
Пароль:

Реєстрація на сайті

Призвіще: Область:
Ім'я: Населений пункт:
    По батькові: Номер телефону:
    Ел. пошта: Компанія:
      Пароль: Посада:
      Повторіть пароль: Рік початку роботи:
      Фото:
      З правилами розміщення об'єктів погоджуюсь

      Забули пароль?

      Вкажіть ел. пошту — ми надішлемо Вам новий пароль для входу
      Ел. пошта:

      Проблема на сайті

      Закрити
      Ваш e-mail:
      (необов'язково)
      Розкажіть нам, що сталось

      пр. Гагаріна — Здається торгівельний майданчик

      (г. Кривой Рог, Саксаганский район)

      400 грн. за кв.м.

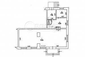
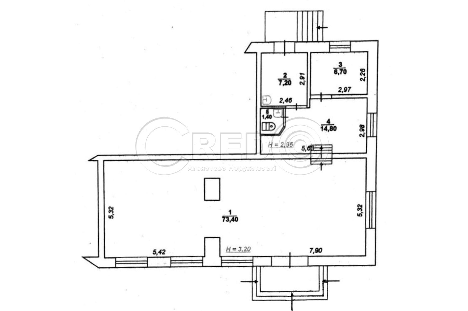
      Загальна площа: 103 кв.м

      Поверх: 1

      К-ть поверхів: 4

      Пр. Університетський, 3 (Гагаріна)
      Саксаганський район
      - загальна площа-103 кв.м
      - торгівельний зал-73,4 кв.м
      - висота стелі - Н= 3,20 м

      Комунікації:
      - центральне електропостачання 12 кВт; 380 Вт
      - центральне водопостачання
      - центральна каналізація
      - автономне газове опалення
      - приточено - витяжна система кондиціювання
      - пожежна та охоронна система.

      Логістична розв’язка:
      - головна вулиця міста
      - розташоване приміщення по «червоній лінії»
      - парковка біля магазину
      - зручний під'їзд
      - великий пішохідний та проїздний трафік.

      Особливості приміщення:
      - магазин в робочому стані
      - ремонтні роботи обговорюються при зустрічі
      - має завантажувальний вхід з рампою
      - магазин кутовий

      Додаткові платежі:
      - світло, вода-лічильники
      - опалення газове- лічильник
      - охоронна, пожежна сигналізації
      - інтернет
      - послуги ЖКХ
      - послуга агенції- 50% по факту оренди

      Вартість оренди - 400 грн/кв.м.

      За будь-якими питаннями за цією або схожими пропозиціями звертайтесь за номером телефону 067 696 16 51.

      Надіслати скаргу

      Закрити
      Поскаржитися на об'єкт «пр. Гагаріна (г. Кривой Рог, Саксаганский район)»
      Ваш коментар:(Необов'язково)
      Ваша скарга буде надіслана ріелтору, що розмістив об'єкт, а також адміністрації сайту АФНУ.
      Ваше ім'я:
      (Обов'язково)
      Ваш e-mail для відповіді:
      (Обов'язково)

      Вам также могут подойти

      пр. Університетський (г. Кривой Рог, Саксаганский район) - Здається торгівельний майданчик, 350 грн. за кв.м. - АФНУ

      Оновлено: 13 серпня

      Розміщено: 29 березня 2024

      Здається торгівельний майданчик

      площа 260, поверх 1/9

      г. Кривой Рог, пр. Університетський

      350 грн. за кв.м.

      Літвинова Ірина Вікторівна

      Оренда торгового приміщення пр. Університетський
      - Довгинцівський район

      Технічні характеристики:
      - перший поверх 9-ти поверхового житлового будинку
      - "червона лінія"
      - в приміщенні ведуться ремонтні роботи

      Планування об’єкту:
      - загальна…

      Детальніше

      пр. Університетський (г. Кривой Рог, Саксаганский район) - Здається торгівельний майданчик, 380 грн. за кв.м. - АФНУ

      Оновлено: 10 вересня

      Розміщено: 8 травня

      Здається торгівельний майданчик

      площа 106, поверх 1/4

      г. Кривой Рог, пр. Університетський

      380 грн. за кв.м.

      Літвинова Ірина Вікторівна

      Оренда магазину в центрі міста по пр. Університетський, (97 квартал).

      Технічні характеристики:
      - загальна площа – 106,8 кв.м.
      - торгівельний зал площею 60,8 кв.м
      - вітражні вікна, красивий фасад
      -…

      Детальніше

      пр. Університетський (г. Кривой Рог, Саксаганский район) - Здається торгівельний майданчик, 350 грн. за кв.м. - АФНУ

      Оновлено: 29 серпня

      Розміщено: 16 травня

      Здається торгівельний майданчик

      площа 308, поверх 1/4

      г. Кривой Рог, пр. Університетський

      350 грн. за кв.м.

      Літвинова Ірина Вікторівна

      Оренда магазину Саксаганський район
      пр. Університетський (пр. Гагаріна), 96 квартал
      "червона лінія"

      Технічні характеристики:
      - перший поверх 4-х поверхового житлового будинку
      - гарний фасад
      - великі вітражні вікна
      - ролети…

      Детальніше

      Коментарі