ул. Есенина — Здається торгівельний майданчик
(г. Кривой Рог, Дзержинский район)
35000 грн.
Загальна площа: 130 кв.м
Поверх: 1
К-ть поверхів: 3
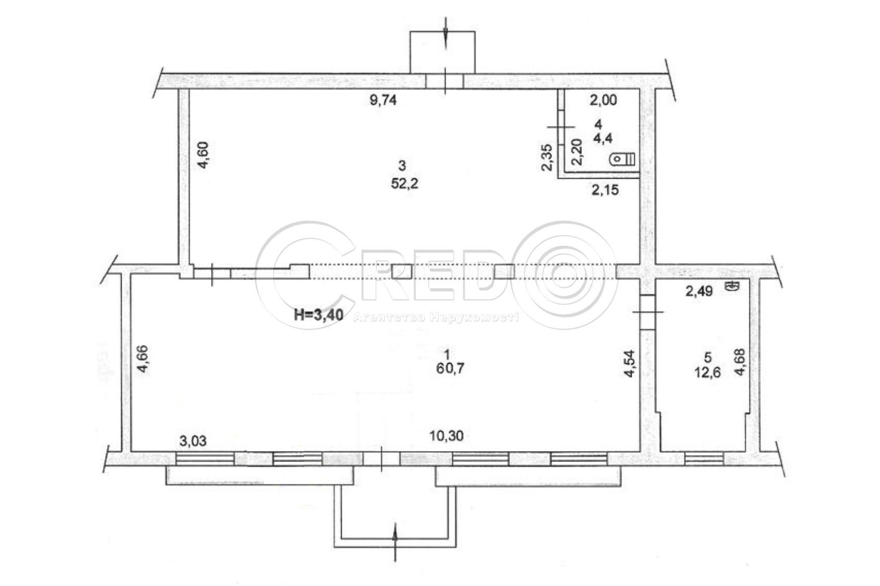
Оренда приміщення вул. Д.Дудаева (Єсеніна) "96 квартал" Про об’єкт: - перший поверх 3-х поверхового будинку - розташований над проїзною частиною - окремий вхід Планування об’єкту: - загальна площа - 130 кв.м - торгівельний зал - 113 кв.м - Н = 3,40 м - санвузол - підсобне приміщення Комунікації: - центральне електропостачання 5 кВт; - центральне водопостачання, каналізація - центральне опалення - кондиціювання - пожарна та охоронна системи - додатковий вхід. Логістична розв’язка: - розташоване приміщення на "96 кварталі" - поряд станція швидкісного трамваю - пішохідний та проїздний трафік. Оренда 35 000грн + ком.послуги Послуга агенції 50% За будь-якими питаннями за цією або схожими пропозиціями звертайтесь за номером телефону 067 696 16 51. З повагою, команда Credo!
Оновлено: 30 вересня
Розміщено: 8 травня
Вам также могут подойти
Оновлено: 9 вересня
Розміщено: 8 листопада 2018
площа 67, поверх 1/4
г. Кривой Рог, ул. Косиора
17700 €
Літвинова Ірина Вікторівна
Продаж приміщення, вул. Соборності, Соцмісто Про обʼєкт: - вбудоване в 1-ий поверх 4-х поверхового житлового будинку - загальна площа - 67,5 кв. м Особливості: - два зали, кабінет - сан.вузол,…
Детальніше
Оновлено: 13 серпня
Розміщено: 22 листопада 2021
площа 30, поверх 1/5
г. Кривой Рог, ул. Косиора
25000 $
Літвинова Ірина Вікторівна
Продаж магазину на "Соцмісті" - Металургійний район - вул. Соборності Розташування: -район " Соцмісто" -розташоване по "червоній лінії" -зупинка " Плавальний басейн" Техничні характиристики: - вбудований в 1 поверх 5-ти…
Детальніше
Оновлено: 11 вересня
Розміщено: 9 травня
площа 92, поверх 1/5
г. Кривой Рог, Віталія Матусевича
20000 грн.
Літвинова Ірина Вікторівна
Оренда приміщення – салону краси, вул. В. Матусевича Технічні характеристики: Приміщення розташоване на 1/5-ти поверхового будинку, над проїзною частиною. - Загальна площа 92.9кв.м., - 4-кабінета, - два санвузла, - вмонтована…
Детальніше
Коментарі