145000 $
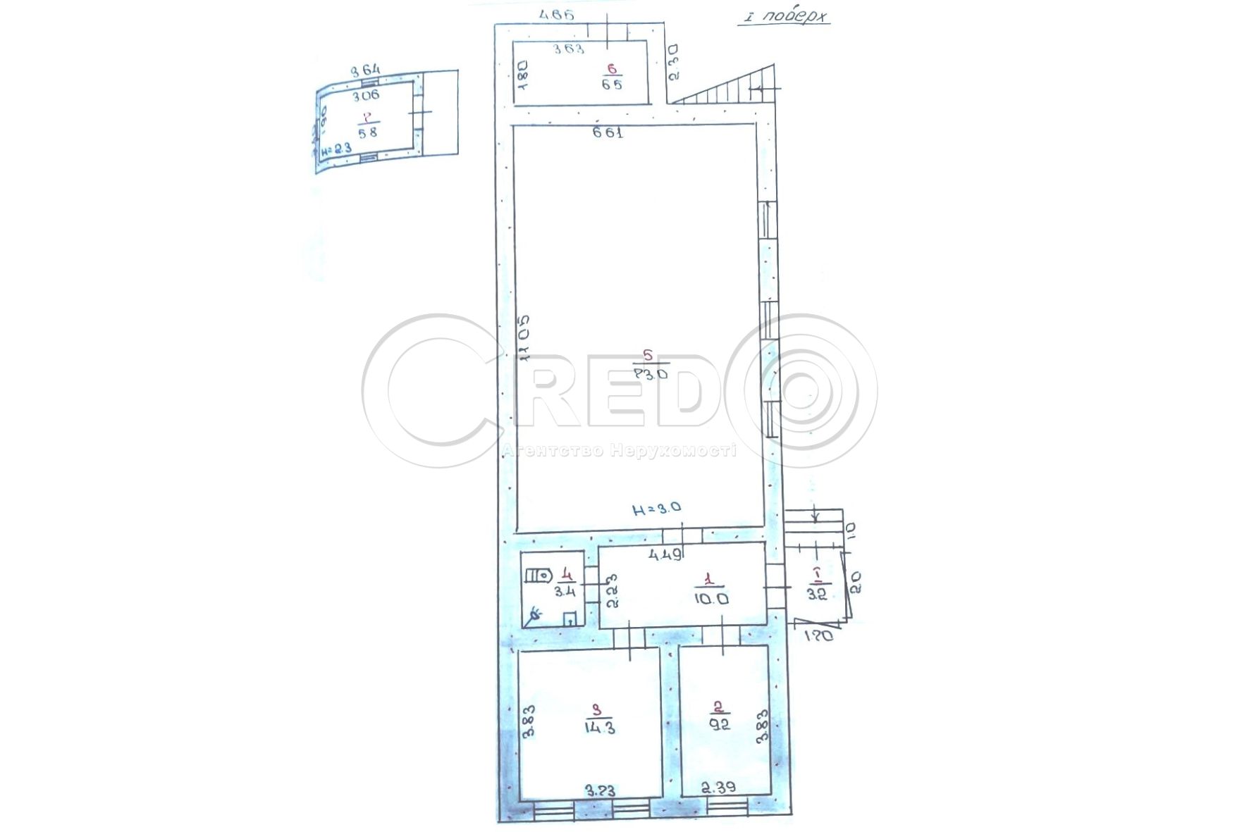
Загальна площа: 541 кв.м
К-ть поверхів: 1
Продаж складу вул. Усика район «Пісочної»Земельна ділянка 30 сотокТериторія огороженаПро об'єкт:- Загальна площа забудови 541.4кв.м.- Склад 205.1кв.м.- Офіс 85.5кв.м.- Сторожка 5.8кв.м.Комунікації:- Електроенергія 220V- Центральне водопстачанняПродаж $145 000 договірнаЗа будь-якими питаннями за цією або схожими пропозиціями звертайтесь за номером телефону, де вам відповість наш ріелтор Надія 098 985 09 08.З повагою, АН CREDO
Літвинова Ірина Вікторівна
+380 (67) 638-50... Показати номер телефона +380 (67) 638-50-54
Поскаржитися на об'єкт
Оновлено: 13 жовтня
Розміщено: 7 травня